(0) Rainbow Lakes DrDillard, GA 30537




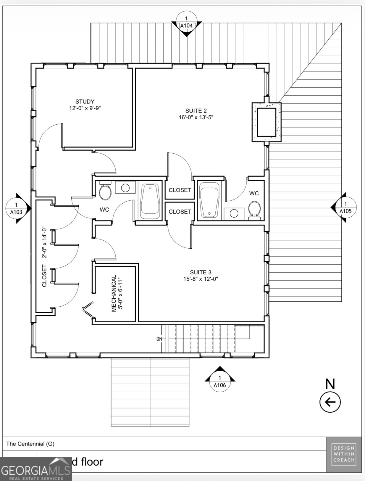
Welcome to The Centennial at Upper Heatherstone Nestled in the serene Upper Heatherstone neighborhood of Dillard, GA, this pre-construction mountain modern retreat, known as "The Centennial (G)," perfectly balances rustic charm with sophisticated architectural design. Spanning two thoughtfully planned levels, this home offers a seamless blend of indoor comfort and outdoor allure. Refined Living Spaces The main level is anchored by a spacious Living Room (19'-2" x 13'-6") featuring a cozy fireplace, ideal for cool mountain evenings. The open-concept layout flows effortlessly into a dedicated Dining area (8'-0" x 13'-4") and a modern kitchen designed for both daily living and hosting. * Primary Suite on Main: Enjoy the convenience of Suite 1 (11'-9" x 13'-9") located on the first floor, complete with a generous 8'-0" x 7'-4" closet and a private shower. * Upper Level Versatility: The second floor boasts two additional suites-Suite 2 (16'-0" x 13'-5") and Suite 3 (15'-8" x 12'-0")-providing ample space for family or guests. * Dedicated Work Space: A quiet Study (12'-0" x 9'-9") on the second level offers the perfect environment for a home office or creative studio. Stunning Exterior & Outdoor Living The Centennial's striking profile features a mix of classic siding and natural stone accents, topped with a dramatic gabled roof reaching a height of 23'-0". * Covered Porch: Relax on the expansive Covered Porch, an inviting space designed to take in the crisp Georgia mountain air. * Architectural Detail: The home features a grand stone chimney and a formal Entryway (6'-6" x 8'-0") that creates a lasting first impression. * Practical Amenities: Functional needs are met with a main-floor Laundry room, a convenient WC for guests, and a dedicated Mechanical room on the upper level. Dont miss this opportunity to take advantage of pre construction pricing. Builder, Butler Homes South.
| 3 hours ago | Listing first seen on site | |
| 3 hours ago | Listing updated with changes from the MLS® |
Information deemed reliable but not guaranteed. The data relating to real estate for sale on this web site comes in part from the Broker Reciprocity Program of Georgia MLS. Real estate listings held by brokerage firms other than this office are marked with the Broker Reciprocity logo and detailed information about them includes the name of the listing brokers. Copyright © 2020-present Georgia MLS. All rights reserved.
Last checked: 2026-04-16 08:08 PM UTC